A MARIO FORLANO – prezioso collaboratore dell’architetto Luigi Caccia Dominioni – edificio di Via Nievo 28/a in Milano – genesi di un progetto.

"dedica dell'architetto Luigi Caccia Dominioni a Mario Folnano-poeticadelle regole"
dedica dell’architetto Luigi Caccia Dominioni a Mario Folnano

Questo articolo lo dedico a tutti coloro che amano l’Archiettura e lo dedico in particolare al Signor Mario Forlano, geometra scomparso qualche anno fa, che ho avuto il piacere e l’onore di conoscere da studentessa, che per molti anni lavorò a fianco dell’architetto Luigi Caccia Dominioni.

Lo dedico anche a tutti i Milanesi, con la speranza che passando accanto all’edificio di Via Nievo potranno meglio apprezzare il valore dell’architettura.

Cercando informazioni in rete dell’edificio di Via Nievo 28/a, vedo con soddisfazione che la scheda riporta alla voce “progetto”: Luigi caccia Dominioni e Mario Forlano.

http://www.lombardiabeniculturali.it/architetture900/schede/p4010-00172/

Di recente tra le  mie scartofie ho ritrovato le piante dell’edificio di Via Nievo 28/a, in Milano, realizzato tra il 1955 e il 1957 al cui progetto lavorò Mario assieme al noto architetto milanese Luigi Caccia Dominioni.  Con orgoglio le condivido.

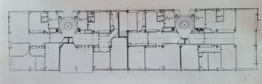
"Pianta piano settimo edificio via Nievo 28/a Milano - Luigi Caccia Dominioni - Mario Forlano-poeticadelleregole"
Pianta piano settimo edificio via Nievo 28/a Milano – Luigi Caccia Dominioni – Mario Forlano
Casabella n. 217 anno 1957 - pagg. 48- 49 edificio di Via Nievo 28/a
Casabella n. 217 anno 1957 – pagg. 47- 48 edificio di Via Nievo 28/a
Casabella n. 217 anno 1957 pagg. 48-49 - edificio di Via Nievo 28/a Milano - progettisti Luigi caccia Dominioni e Mario Forlano
Casabella n. 217 anno 1957 pagg. 48-49 – edificio di Via Nievo 28/a Milano

Fu Mario a regalarmele tanti anni fa quando ero ancora studentessa; Mario si raccomadò: ” Fai tesoro di quello che troverai in queste piante, guardale e riguardale … ci troverai tutto il modo di lavorare del Caccia (così lui lo chiamava con affetto), fanne tesoro”.

Mario conosceva mio padre da molti anni, e da bambina spesso lo vedevo passare dallo studio del papà. Ero ancora studentessa al Politecnico di Milano, alla Facoltà di Architettura, quando Mario mi invitò a casa sua; solo dopo molti anni capii il valore delle sue parole, delle sue raccomandazioni.

Venivo ricevuta nel suo studio, quasi un’intero piano della sua bella casa, il suo “rifugio” soleggiato che dava sul giardino, pieno di libri, disegni, fotografie; un simpatico caos creativo. Aveva un tecnigrafo grande e lavorava da tempo, mi raccontava, ad un prototipo di macchina per la città. Aveva una mente strordinaria, brillante e una “erre” moscia molto pronunciata, un fare cordiale. “Nelle piante sta tutta l’architettura del Caccia”, mi diceva.

Vorrei qui di seguito illustrare quando Mario mi raccontò della genesi del progetto dell’edificio di Via Nievo e delle sue peculiarità:

  • la novità stava nel disegno delle facciate, tutte e quattro libere, ove le aperture non si ripetevano allineate verticalmente piano per piano e, ripetendosi in quattro tipi di composizione di serramenti ( vetro, ante, tapparelle in un unico blocco a filo facciata), davano un’idea di libertà. Mi piace sottolinare che questa libertà non nasce dal caso, la regola c’è e come.

questa novità era nata da un bisogno,  non fu libero arbitrio, come raccontava Mario,  che era letteralmente impazzito su quelle piante.  Il taglio degli alloggi doveva essere il più possibile vario, per rispondere alla vocazione dell’edifico di “casa in condominio”e la difficoltà di conciliare la posizione dei pilastri con un impaginato delle aperture delle facciate fu tale che l’idea venne, quasi per disperazione. “Perché non facciamo le finestre tutte diverse!” Mario raccontava che in studio ad un certo punto questa frase uscì, e nacque l’idea.

"facciata edificio di Via Nievo-Casabella 1957 pag. 52-poeticadelleregole"
faccaiata edificio di Via Nievo- foto tratta da Casabella n. 217 anno 1957 pag. 52

Questa immagine porta gli appunti di Mario apposti direttamente sulla pagina della rivista (1 antone fisso contro vetro per partea fissa – 2 tapparella scorrevole -3 finestra).

  • uso della pianta libera. Mario mi raccontò l’estrema difficoltà di “risolvere” dal punto di vista strutturale l’edifico. Le piante sono una diversa dall’altra dal punto di vista della distribuzione funzionale degli ambienti nei vari tagli di alloggio;
    caccia dominioni pinata piano settimo - Via nievo 28/a Milano
    Pianta piano settimo – edificio Via Nievo 28/a Milano

    Pianta piano quarto edificio Via Nievo 28/a - Milano
    Pianta piano quarto edificio Via Nievo 28/a – Milano
  • la particolarità della geometria delle scale, un marchio riconoscibile la firma dell’architetto Caccia Dominioni, ampie signorili, sinuose. Le scale non sono mai relegate in un angolo, come fossero un elemento da nascondere, ma quelle principali diventano caratterizzanti l’architettura stessa;

    Luigi Caccia domioni- Case e cose da abitare- Marsilio editore- pag. 183
    Luigi Caccia Dominioni- Case e cose da abitare- Marsilio editore- pag. 183
  • il rivestimento delle facciate interamente in piastrelle di grès lucido;
  • l’uso della porta orienatata a 45 gradi come accesso agli ambienti, evita che entrando ci si trovi di fronte alla spalla di un armadio, ad esempio, e la percezione dell’ambiente entrandovi è migliore;
  • la progettazione integrata degli aredi, che vanno a “colmare” e utilizzare, per così dire,  gli spazi generati della geometria della scale che incontra le murature.

Con la stessa logica fu realizzato anni dopo l’edificio di Piazza Carbonari, anche questo con un impaginato della facciata che ricalca le logiche sopra descritte e la pianta libera.

UN ANEDDOTO CURIOSO…

Mario mi raccontò un aneddoto curioso: l’area su cui giace l’edificio pare fosse per “errore”,  un’area bianca, priva di capacità edificatoria, non mappata  all’interno dello strumento urbanistico,  in un crocevia di strade, un’area slabrata del tessuto urbano di allora, marginale. Mario raccontò che il progetto fu una proposta che dovette essere quindi da un lato accettata dal Comune e dall’altro concordata con il Comune di Milano, che pretese un aumento significativo dell’area a verde a fronte dell’innalzamento dell’altezza dell’edificio, là dove questo affacciava sul verde.

Oggi leggo sul n.9/10, anno 2014  della pubblicazione “Architettura Civile”, dedicato all’architetto Luigi Caccia Dominioni, alla pag. 22, un articolo di Edoardo Colonna di Pagliano, nel quale si racconta che l’area  su cui oggi sorge l’edificio di Piazza Carbonari  fu acquistata attorno al 1950 da un imprenditore comasco. Sull’area, racconta Colonna, insisteva una villa signorile di due piani fuori terra; fu acquistata per attuare un intervento di edilizia popolare, e solo successivamente la propietà optò per la realizzazione di un condominio con alloggi di maggior pregio. Il Piano Regolatore allora vigente era quello del 1953, che imponeva altezze di fronti diverse a seconda del calibro stradale o dell’affaccio su spazi verdi.

Ringrazio il figlio di Mario,  che gentilmente mi ha prestato il prezioso materiale di cui ho fatto uso in questo articolo.

 

Un pensiero riguardo “A MARIO FORLANO – prezioso collaboratore dell’architetto Luigi Caccia Dominioni – edificio di Via Nievo 28/a in Milano – genesi di un progetto.

  1. Non sono un architetto, nemmeno un geometra ma la lettura di questo articolo ha catturato il mio interesse …mi ha incuriosita molto a tal punto che mi è venuta voglia di andare a vedere questo edificio !!

    "Mi piace"

Lascia un commento